ようこそ ゲスト 様

都城市早鈴町 新築一戸建て(3LDK)

都城市早鈴町 新築建売 2950万円 3LDK

お問い合わせ番号:f00165-30447
不動産/新築一戸建て
都城市早鈴町 新築建売 2950万円 3LDK
都城市早鈴町
日豊本線 西都城 ( 徒歩 23分 )
( 早鈴町 バス停まで徒歩4分 )
都城市立南小学校  / 都城市立姫城中学校
価格 2950.00万円
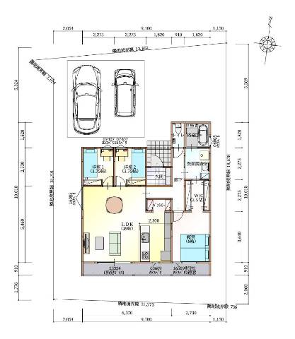
間取り 3LDK
■「家族との時間も、日々の便利さも、どちらも大切にしたい」そんな想いはありませんか。都城市早鈴町の閑静な住宅街に位置するこちらの新築平屋は、穏やかな住環境と高い利便性を兼ね備えた一邸です。近くにはイオンやスーパーが揃い、仕事帰りの買い物や週末のまとめ買いもスムーズ。暮らしやすさを実感できる立地は、将来にわたって安心できるポイントです。
■間取りは3LDKの平屋。南向きのリビングにはやわらかな陽射しが差し込み、家族が自然と集まる心地よい空間を演出します。休日にはリビングでゆったり過ごしたり、家族で食卓を囲む時間がより豊かに感じられるはずです。
■駐車場は2台分を確保しており、ご夫婦それぞれのお車や来客時にも安心。平屋ならではの安心感と、生活利便性の高さを兼ね備えたこの住まいは、初めての住宅購入でも将来を見据えて選びやすい一邸です。
≪売買・住宅ローンに強い拓新リアルティへ、まずはお気軽にご相談ください。≫
■南小学校・姫城中学校
建物/専有
面積
77.01m2
(23.30坪)
土地面積 235.76m2
(71.32坪)
築年月 2026年8月
(令和8年8月)
駐車場 有/2台 地上階数 1階 地下階数 -
構造 木造
接道状況 公道 西 4.00m 
用途地域 第一種住居地域
都市計画 未線引区域
計測方式 公簿
土地権利 所有権
不動産の現況 新築
入居/引渡 相談 
取引 仲介
■学校区
南小学校まで約450m(徒歩約6分)
姫城中学校まで約350m(徒歩約5分)
■周辺の施設
ドラッグストアコスモス早鈴店まで約230m
相愛保育園まで約240m
ダイレックス早鈴店まで約420m
セブン-イレブン 都城早鈴町店まで約530m
■学校区:
都城市立南小学校
都城市立姫城中学校

住宅ローンシミュレーション

ローンシミュレーション条件
頭金 万  
ボーナス払い
(年2回)
万  
借入利率 %  
借入年数 年  
ローンシミュレーション結果
借り入れ金額 29,500,000
月々の返済額
(ボーナス月以外の年10回)
82,589/月
ボーナス月の返済額
(年2回)
82,589/月
年間の返済額 991,068
総支払額
(頭金含む)
34,687,380
  • ※元利均等返済方式でシミュレーションしています。
  • ※実際のご返済額はその他の条件により計算結果と異なりますので、予めご了承ください。
  • ※シミュレーション結果はご返済の目安としてご利用ください。また、将来のお借り入れを約束するものではありません。

都城市早鈴町 新築建売 2950万円 3LDK 周辺地図

都城市早鈴町 新築建売 2950万円 3LDK のことならお気軽にご相談ください。
拓新リアルティ不動産
TEL:0986-36-6066
営業時間:9:00~19:00
定休日 :毎週水曜日・年末年始
メールでのお問い合わせ

お電話の場合は物件番号 < f00165-30447 > を伝えていただくとスムーズにお応えできます。

非公開物件情報
一般公開物件
462
会員用非公開物件
147
  • ログイン
  • 新規登録
  • オンライン相談始めました。
  • キャンペーン
  • 地図検索
  • 新着物件
  • 値下げ物件
  • オープンハウス
  • 学校区検索
  • 売買物件検索
  • 土地
  • 一戸建て
  • マンション
  • 収益・事業用
  • すべてのタイプから検索
  • こだわり物件検索
  • 地域から探す
  • 最寄り駅から探す
  • 新築・築浅物件
  • リフォーム済み
  • 平屋建て
  • 駐車場2台以上
  • 建築条件無しの土地
  • 賃貸物件情報
  • 賃貸マンション・アパート・貸家
  • 店舗・事務所・その他事業用
お知らせ
  • スマホで物件検索
  • リースバック
  • 売却物件募集
  • 物件リクエスト
  • 不動産購入の基礎知識
  • 不動産購入の流れ
  • 住宅ローンの基礎知識
  • 住宅ローンにお困りの方
  • お客様の声
  • スタッフブログ
  • おすすめスポット100選
  • 注文住宅の相談窓口 都城店
  • らしく
  • スタッフ紹介
  • 会社概要・アクセス
  • 採用情報
  • リンク集

このたびは株式会社拓新リアルティのホームページをご覧いただき誠にありがとうございます。

株式会社拓新リアルティでは都城市を中心とした三股町・宮崎市・曽於市の不動産情報をいち早くお客様にお届けしています。
お客様のご希望に沿った物件をご紹介出来るよう、誠意をもって取り組ませていただきます。
都城市を中心とした三股町・宮崎市・曽於市に精通した有資格者が正確な物件情報をお伝えすることをお約束いたしますので、お気軽にお問い合わせください。

お客様に喜んでいただけるよう、社員一同努力精進いたしますので、宜しくお願い申し上げます。