ようこそ ゲスト 様

北諸県郡三股町蓼池 新築一戸建て(3LDK)

北諸県郡三股町蓼池 新築建売 2400万円

お問い合わせ番号:f00165-30445
不動産/新築一戸建て
北諸県郡三股町蓼池 新築建売 2400万円
北諸県郡三股町蓼池
日豊本線 餅原 ( 徒歩 27分 )
( 三原入口 バス停まで徒歩5分 )
三股町立勝岡小学校  / 三股町立三股中学校
価格 2400.00万円
間取り 3LDK
■こんなお悩みありませんか。家族でのびのび暮らしたいけれど、無理のない支払いで将来も安心したい。そんな方に、三股町蓼池の落ち着いた住環境をご紹介します。コンビニやスーパーが身近に揃い、日々の暮らしやすさを実感できる立地です。
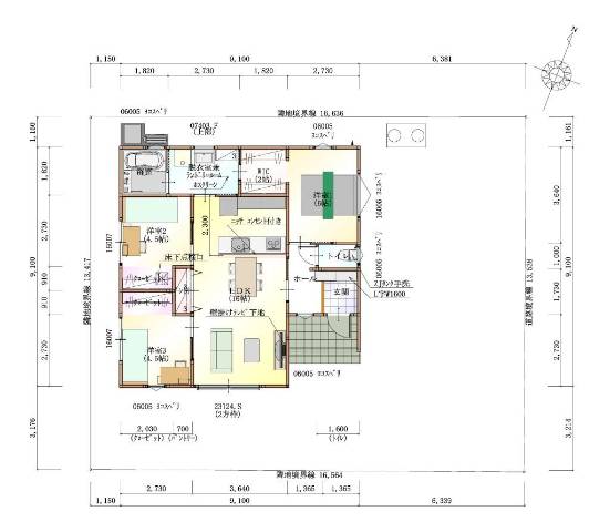
■土地223.74㎡、建物75.35㎡の新築平屋3LDK。カウンターキッチンからリビングを見渡せ、家族時間が自然と増える設計が魅力です。朝は光が差し込む空間でゆったりと、休日は庭先で過ごす穏やかな時間が思い浮かびます。
■平屋ならではの動線の良さは、将来性と安心につながり、長く住むほど価値を感じられます。一方で小・中学校まで少し距離はありますが、送迎や通学ルートの確認で不安は軽減できます。まずは実際の空間を体感してみませんか。ご相談だけでも歓迎です。
≪売買・住宅ローンに強い拓新リアルティへ、まずはお気軽にご相談ください。≫
■勝岡小学校・三股中学校
建物/専有
面積
75.35m2
(22.79坪)
土地面積 223.74m2
(67.68坪)
築年月 2026年7月
(令和8年7月)
駐車場 地上階数 1階 地下階数 -
構造 木造
接道状況 公道 東 13.54m 
用途地域
都市計画 未線引区域
計測方式 公簿
土地権利 所有権
不動産の現況 新築
入居/引渡 相談 
取引 仲介
■学校区
勝岡小学校まで約1400m(徒歩約18分)
三股中学校まで約4300m(徒歩約54分)
■周辺の施設
ファミリーマート 三股たで池店まで約410m
アタックス三股店まで約550m
ほっともっと三股蓼池店まで約580m
こばと保育園まで約760m
■学校区:
三股町立勝岡小学校
三股町立三股中学校

住宅ローンシミュレーション

ローンシミュレーション条件
頭金 万  
ボーナス払い
(年2回)
万  
借入利率 %  
借入年数 年  
ローンシミュレーション結果
借り入れ金額 24,000,000
月々の返済額
(ボーナス月以外の年10回)
67,191/月
ボーナス月の返済額
(年2回)
67,191/月
年間の返済額 806,292
総支払額
(頭金含む)
28,220,220
  • ※元利均等返済方式でシミュレーションしています。
  • ※実際のご返済額はその他の条件により計算結果と異なりますので、予めご了承ください。
  • ※シミュレーション結果はご返済の目安としてご利用ください。また、将来のお借り入れを約束するものではありません。

北諸県郡三股町蓼池 新築建売 2400万円 周辺地図

北諸県郡三股町蓼池 新築建売 2400万円 のことならお気軽にご相談ください。
拓新リアルティ不動産
TEL:0986-36-6066
営業時間:9:00~19:00
定休日 :毎週水曜日・年末年始
メールでのお問い合わせ

お電話の場合は物件番号 < f00165-30445 > を伝えていただくとスムーズにお応えできます。

非公開物件情報
一般公開物件
462
会員用非公開物件
147
  • ログイン
  • 新規登録
  • オンライン相談始めました。
  • キャンペーン
  • 地図検索
  • 新着物件
  • 値下げ物件
  • オープンハウス
  • 学校区検索
  • 売買物件検索
  • 土地
  • 一戸建て
  • マンション
  • 収益・事業用
  • すべてのタイプから検索
  • こだわり物件検索
  • 地域から探す
  • 最寄り駅から探す
  • 新築・築浅物件
  • リフォーム済み
  • 平屋建て
  • 駐車場2台以上
  • 建築条件無しの土地
  • 賃貸物件情報
  • 賃貸マンション・アパート・貸家
  • 店舗・事務所・その他事業用
お知らせ
  • スマホで物件検索
  • リースバック
  • 売却物件募集
  • 物件リクエスト
  • 不動産購入の基礎知識
  • 不動産購入の流れ
  • 住宅ローンの基礎知識
  • 住宅ローンにお困りの方
  • お客様の声
  • スタッフブログ
  • おすすめスポット100選
  • 注文住宅の相談窓口 都城店
  • らしく
  • スタッフ紹介
  • 会社概要・アクセス
  • 採用情報
  • リンク集

このたびは株式会社拓新リアルティのホームページをご覧いただき誠にありがとうございます。

株式会社拓新リアルティでは都城市を中心とした三股町・宮崎市・曽於市の不動産情報をいち早くお客様にお届けしています。
お客様のご希望に沿った物件をご紹介出来るよう、誠意をもって取り組ませていただきます。
都城市を中心とした三股町・宮崎市・曽於市に精通した有資格者が正確な物件情報をお伝えすることをお約束いたしますので、お気軽にお問い合わせください。

お客様に喜んでいただけるよう、社員一同努力精進いたしますので、宜しくお願い申し上げます。